守口市八雲東2丁目 新築戸建 4,480万円
| 価格 | 4,480万円 |
|---|---|
| 交通 |
OsakaMetoro 谷町線 大日駅 徒歩約10分 |
| 住所 | 大阪府守口市八雲東町2丁目 |
| 土地面積 | 89.84㎡ 私道約14.43㎡含 |
| 建物面積 | 81.36㎡ |
守口市八雲東2丁目 新築戸建 4,480万円
長期優良住宅!設備も充実のナノバブルの家!
| 物件所在地 | 大阪府守口市八雲東町2丁目 | ||
|---|---|---|---|
| 交通 |
OsakaMetoro 谷町線 大日駅 徒歩約10分 |
||
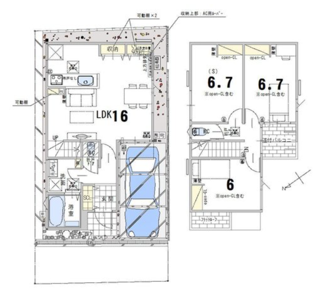
| 価格 | 4,480万円 | 間取り | 2LDK+S |
| 面積(土地/建物) | 89.84㎡ 私道約14.43㎡含/81.36㎡ | 築年月 | 2025年4月 |
| 建物構造/階数 | 木造銅板ガルバリウム鋼板ぶき/2階建 | 建物現状 | 完成済 |
| 駐車場/台数 | 1台 | 建築確認番号 | |
| 土地権利 | 所有権 | 地目 | 宅地 |
| 地代 | 借地期間 | ||
| 都市計画 | 国土法届出 | ||
| 用途地域 | 第一種住居地域 | 建ぺい率/容積率 | 70%/200% |
| 接道状況 | 北西私道:幅員約5.0m 接面約6.84m | 引渡時期 | 即時 |
| セットバック | 私道負担 | ||
| 備考 | ・表題登記関連費用:110,000円(税込)別途要・長期優良住宅関連費用:110,000円(税込) 別途要 ・造付バルコニー面積約3.31㎡・納戸申請有 ・大日・八雲東町地区防災街区整備地区計画 |
||
| 設備/仕様/特徴 | 長期優良住宅認定通知書 / 地盤調査済 / 市街地が近い / システムキッチン / 全居室収納 / LDK15畳以上 / 対面式キッチン / トイレ2ヶ所 / 2階建 / 浴室に窓 / TVモニタ付インターホン / 全居室フローリング / 全居室6畳以上 / リビング階段 / 全居室複層ガラスか複層サッシ / 都市ガス / 小学校 徒歩10分以内 / 平坦地 / 納戸 | ||
| 小学校区 | 八雲東小学校 | ||
| 中学校区 | 第一中学校 | ||
| 取引形態 | 仲介 | ||
| 情報更新日 | 2025年11月17日 | 次回更新予定日 | 年 月 日 |
周辺地図
現在の検索条件
- ■種別:売買物件
新築戸建 - ■地域:ー
- ■沿線:ー
























