東急ドエル・アルス鶴見緑地公園 マンション 3,090万円
2025年4月リフォーム済!いつでも内覧可能です!
| 価格 | 3,090万円 |
|---|---|
| 交通 | OsakaMetoro 今里筋線 新森古市駅 徒歩約8分 OsakaMetorot 長堀鶴見緑地線 今福鶴見駅 徒歩13分 |
| 住所 | 大阪市城東区古市2丁目 |
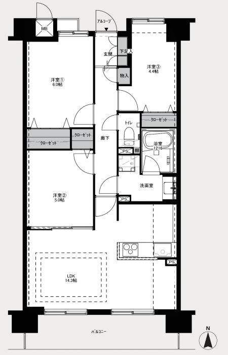
| 専有面積 | 65.84㎡ |
| その他面積 | 南向きバルコニー面積9.00㎡ |
東急ドエル・アルス鶴見緑地公園 マンション 3,090万円
2025年4月リフォーム済!いつでも内覧可能です!
| 物件所在地 | 大阪市城東区古市2丁目 | ||
|---|---|---|---|
| 交通 | OsakaMetoro 今里筋線 新森古市駅 徒歩約8分 OsakaMetorot 長堀鶴見緑地線 今福鶴見駅 徒歩13分 |
||
| 価格 | 3,090万円 | 間取り | |
| 販売戸数 | 1戸 | 総戸数 | 27戸 |
| 専有面積 | 65.84㎡ | その他面積 | 南向きバルコニー面積9.00㎡ |
| 所在階/構造・階建 | 3階/鉄筋コンクリート造9階建 | 完成時期(築年月) | 1998年3月 |
| 備考 | ◆管理費/月額12,500円 ◆修繕積立金/月額21,070円 ◆土地権利/所有権 ◆分譲会社/東急不動産株式会社 ◆施工会社/株式会社昭和工務店 ◆設計会社/株式会社創建社一級建築士事務所D&R設計 ◆管理会社/株式会社東急コミュニティー ◆管理形態/全部委託(日勤) ◆駐車場/敷地内有(月額17,000円~23,000円) ◆駐輪場/敷地内有(月額100円) ◆バイク置場/敷地内有(月額800円~1,000円) ◆ペット飼育/観賞用魚類以外不可 |
||
| 設備/仕様/特徴 | 設 備・仕 様 ◆オートロック ◆エレベータ ◆都市ガス ◆モニター付インターフォン ◆浄水機能付水栓 ◆浴室乾燥機 ◆LED照明 ◆人感センサー ◆防犯カメラ ◆宅配ボックス ◆クリーニングボックス ◆インターネット対応 ◆CATV・BS・CS対応 リノ ベ ー ション 内 容 ◆システムキッチン交換 ◆ユニットバス交換 ◆洗面台交換 ◆トイレ交換 ◆全室クロス張替 ◆全フローリング張替 ◆全建具交換 ◆CF張替 ◆下足入れ交換 ◆洗濯水栓器具交換 ◆防水パン交換 ◆スイッチパネル設置 ◆ダウンライト設置 ◆照明器具設置 ◆玄関人感センサー設置 |
||
| 小学校区 | 大阪市立すみれ小学校 | ||
| 中学校区 | 大阪市立菫中学校 | ||
| 取引形態 | 仲介 | ||
| 情報更新日 | 2025年11月27日 | 次回更新予定日 | |
周辺地図
現在の検索条件
- ■種別:売買物件
マンション - ■地域:ー
- ■沿線:ー













